Hi!
Philosophy
Work
News
Team
Hi!
Philosophy
Work
News
Team

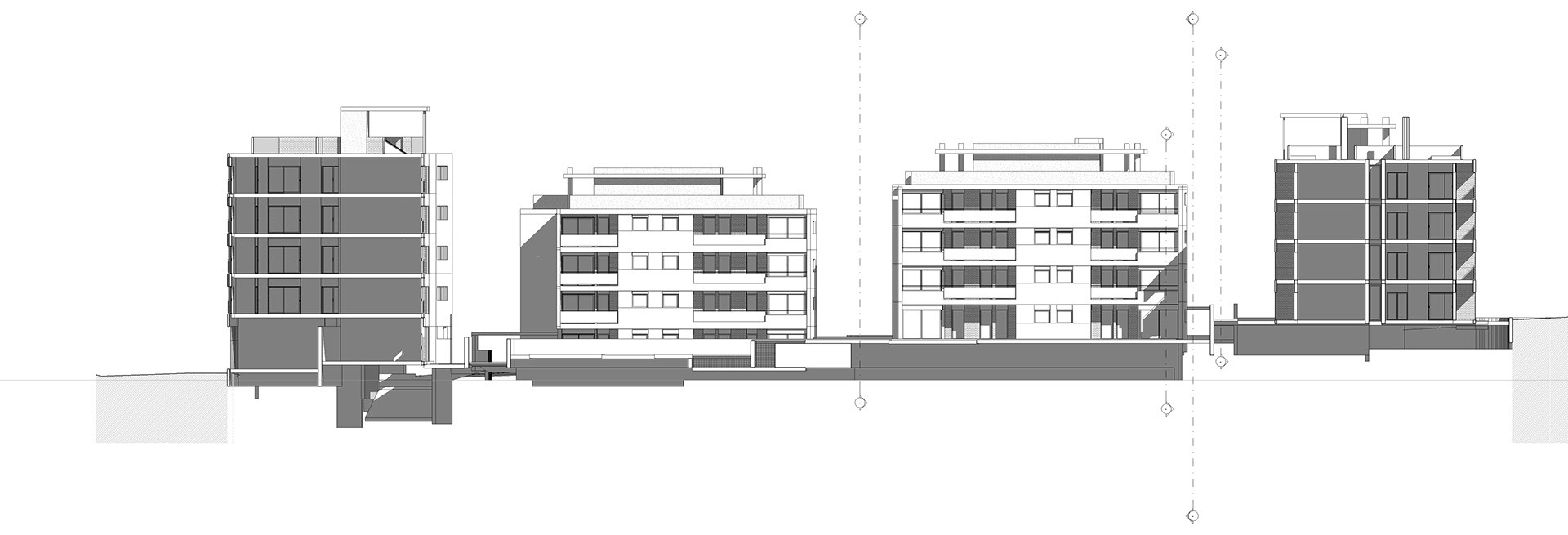
BLAU I CEL LLINARS

148 viviendas plurifamiliares INMOGLACIAR

You may also like

TEC SANT JUST
2023
CERVANTES RUBI
2019
WALDEN 7 - SANT JUST
2018
BTR TARRAGONA
2023
CAN BIOSCA - SANT JUST
2018
DIAGONAL 640 - BARCELONA
2022
SANT PERE RUBI
2020
CRTA .SABADELL RUBI
2020
CAN JULIA - RUBI
2003
ARTS MONTCADA
2020
↑Back to Top
Powered by farres.frias architects